Обяви За нас Контакти
Продава 2-СТАЕН
град София, Младост 3
182 400 €
356 743.39 лв.

(2 400 €, 4 693.99 лв./m2)
Цената е с включено ДДС
История на цената
Публикувана в 9:50 на 4 ноември, 2025 год.
Обявата е посетена 90 пъти.
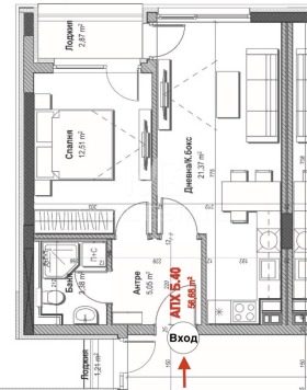
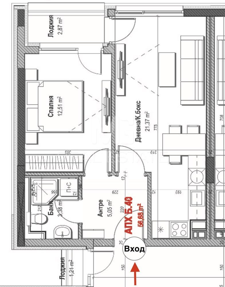
Площ:
76 m2
Етаж:
6-ти от 6
Строителство:
Тухла, 2027 г.

Описание на имота:


MG Real Estate ви представя нов жилищен комплекс с модерна архитектура, функционален дизайн и висококачествено строителство. Разположен в кв. Младост 3, един от най-предпочитаните и добре развити райони на София. С цел запазване на съществуващата зеленина и дървета, комлекса разполага с надземни паркоместа и гаражи, което осигурява повече естествена светлина, простор и екологичен баланс в общите площи на комплекса.
В близост до хипермаркети 'Кауфланд', 'Фантастико', магазини, учебни заведения, детски градини, ресторанти, аптеки и разнообразни търговски обекти.

Обща площ: 76,17кв.м.; Чиста площ: 70,02кв.м.; Общи части: 6,15кв.м.;

Локацията осигурява удобен достъп до градски транспорт:
Метростанция Младост 3
Автобусни спирки (76, 111, 213, 305, 314, 805)

Отопление: Електричество;
В строителството се използват висок клас материали.

--------------------------------
Етап на строителство: Груб строеж
Срок на завършване ('АКТ 16'): Август 2027г.
--------------------------------
Вложени материали:
Тухли: 'Wienerberger'
Дограма: 'Reynaers' 8 камерна - троен стъклопакет
Мазилки: 'ROFIX'
Асансьор: 'KONE'
Изолация: EPS & XPS

Апартаментите се предават на шпакловка и замазка по БДС.

Oпция за покупка на гараж с цени започващи от 40000 евро без ДДС.
--------------------------------
Агенцията предлага пълно съдействие при кандидатстване за ипотечен кредит, потребителски кредит или рефинансиране за по-добри условия НАПЪЛНО БЕЗПЛАТНО!
Посочените в обявата цени са крайни и с включено ДДС.
--------------------------------
За повече информация и огледи: Микаел Жебраел - 0899/680 002.
Виж всички обяви в mgrealestate.bazar.bg или тук
Особености
Тухла
За контакт:
0899680002
Брокер:
Микаел Жебраел
0899680002
Още оферти от брокера: Продава | Дава под наем | Купува | Наема
Агенция:
М. ДЖИ. РИЪЛ ЕСТЕЙТ
0899680002
М. ДЖИ. РИЪЛ ЕСТЕЙТ logo
Медал за прослужено време
В imot.bg от 2020 г.
mgrealestate.imot.bg
Адрес:
област София, гр. София, гр. София кв. Студентски град ул. Баку 5а
http://mgrealestate.bg
ИЗПРАТИ ЗАПИТВАНЕ
ИЗПРАТИ ЗАПИТВАНЕТО

Продава 2-СТАЕН
град София, Младост 3
Обява: 1b176224263767280

182 400 €
356 743.39 лв.
История на цената
(2 400 €, 4 693.99 лв./m2)

Цената е с включено ДДС
ЗАПАЗИ ОБЯВАТА

Местоположение: град София, Младост 3